


























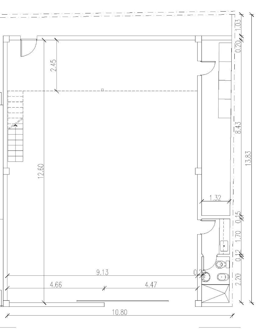
Galpón en alquiler comercial sobre la calle Maipú al 800, entre Buenos Aires y Maipú, Maschwitz, Escobar, Bs. As. Lote de 149m2 (10.80m x 13.80m). Galpón planta baja: 9.10m x 12.60m: 114.66m2 + entrepiso de 9.10m x 2.45m: 22.30m2, total galpón con entrepiso: 136.95m2, deposito lateral en planta baja: 1.30m x 8.40m: 10.90m2, cocina y baño completo: 1.30m x 4.00m: 5.20m2, patio descubierto de: 10.80m2.
CONDICIONES:
Contrato Comercial, plazo mínimo 2 años.
Forma de pago: Pesos mas IVA actualizacion cuatrimestral x IPC nivel general.
1 mes pago adelantado, 2 meses de deposito.
La propiedad se alquila vacía.
A presentar y a cargo del interesado: Antecedentes penales e informe de dominio e inhibición (de corresponder) y un seguro por responsabilidad civil e incendio de la propiedad a locar por parte del interesado, empresa de primera línea únicamente.
Gastos por mes a cargo del interesado: Servicios e impuestos.
Garantías del contrato: El interesado deberá presentar un seguro de caución/alquiler de marca de primera línea, o dos garantías a consideración del propietario (seguro caución / alquiler, aval bancario, garantía propietaria, fiador y recibos de sueldos, etc.).
Usos: No se permite usos que generen mucho ruido como ser carpintería, herrería, etc..
Usos permitidos Municipalmente: Vivienda, comercio de abastecimiento diario, usos vinculados con la residencia, pequeños talleres e industrias de baja complejidad, depósitos, comercios mayoristas, restaurantes, bares y otros usos compatibles.
El interesado deberá consultar en la municipalidad si la propuesta comercial es habilitable y correrá por su cuenta los gastos de la habilitación y eventuales modificaciones del inmueble, a consideración del propietario.
DETALLES TECNICOS
Piso de hormigón.
Entrepiso de estructura metálica y placas de fenólico.
Luz trifásica.
Sin gas, pero pasa la instalación por la puerta del inmueble.
Cuenta con agua corriente y cloaca.
1 baño completo. Kitchenette.
Comercializan Martilleros y Corredores Públicos:
Lic. y Mart. Matías Vinelli, CUCICBA nº 2557
Arq. y Mart. Federico Vinelli, CMCPSI nº 6652
Maipu N° 800
Estado de la propiedad: Muy Bueno
Apto prof.: Sí
Acepta mascotas: Sí
Superficie total: 153 m²
Superficie cubierta: 153 m²
Superficie terreno: 149 m²
Fondo libre: 11 m²
Superficie construible: 0 m²
Altura entrada: 3
Medidas de terreno: 10.8 x 13.8
Código aviso: 3952